Cartuja de Miraflores
La Cartuja de Santa María de Miraflores es un monasterio de la Orden de los Cartujos, edificado en una loma conocida como Miraflores, situada a unos tres kilómetros del centro de la ciudad de Burgos (Castilla y León, España).
| Cartuja de Miraflores | ||
|---|---|---|
|
Bien de Interés Cultural (5 de enero de 1923 (RI-51-0000238) | ||
|
| ||
![]() | ||
| Localización | ||
| País |
| |
| División |
| |
| Subdivisión |
| |
| Localidad | Burgos | |
| Coordenadas | 42°20′17″N 3°39′24″O | |
| Información religiosa | ||
| Culto | Iglesia católica | |
| Archidiócesis | Archidiócesis de Burgos | |
| Orden | Orden de los Cartujos | |
| Historia del edificio | ||
| Fundación | 1441 | |
| Fundador | Juan II de Castilla | |
| Construcción | 1454-1484 | |
| Arquitecto | Juan de Colonia y Simón de Colonia (original), Diego de Mendieta (capillas) | |
| Otro artista | Gil de Siloé y Diego de la Cruz (retablo mayor) | |
| Obras artísticas | Sepulcros reales (Gil de Siloé), Anunciación (Pedro Berruguete) | |
| Datos arquitectónicos | ||
| Tipo | Cartuja | |
| Estilo | Gótico | |
| Identificador como monumento | RI-51-0000238 | |
| Año de inscripción | 5 de enero de 1923 | |
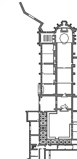
| Planta del edificio | ||
![]() Plano parcial de la cartuja de Miraflores | ||
| Mapa de localización | ||
![]() Cartuja de Miraflores | ||
| Sitio web oficial | ||
Es una joya del arte gótico final. En el conjunto destaca la iglesia, cuya portada occidental, en estilo gótico isabelino, está decorada con los escudos de sus fundadores. El templo es de una sola nave, capillas laterales y ábside poligonal. La nave está cubierta con bóveda estrellada.
En 2015, para la aprobación por la Unesco de la ampliación del Camino de Santiago en España a «Caminos de Santiago de Compostela: Camino francés y Caminos del Norte de España», la administración española envió como documentación un «Inventario Retrospectivo - Elementos Asociados» (Retrospective Inventory - Associated Components) que incluye con el n.º 1009 a la Cartuja de Santa María de Miraflores.[1]
Situación y acceso
La Cartuja se encuentra a 3 km al este del centro de la ciudad de Burgos, en el entorno del parque de Fuentes Blancas y al sur del río Arlanzón. El monumento está conectado con la ciudad por la carretera BU-800 y puede llegarse también a pie por una ruta natural. Es posible acudir en autobús o en taxi desde la ciudad y también existe aparcamiento gratuito para los vehículos privados y autobuses.[2]
Orígenes
El rey Juan II de Castilla dona a la Orden de los Cartujos el palacio y alcázar de Miraflores, mandado construir en 1401 por su padre, Enrique III de Castilla. Era un pabellón de caza ubicado a las afueras de la ciudad de Burgos. De esta manera, Juan II cumplía la voluntad testamentaria de Enrique III.
[...] Por la cual ofrescí a la dicha su orden [cartuja] los que entonces eran mis palacios de la dicha Miraflores e agora son el dicho monesterio de Sant Francisco de la dicha Orden de Cartuxa.[3]
La cartuja de Miraflores fue fundada en 1442 por el rey Don Juan II de Castilla y León (1405-1454), aunque esta cartuja es, en realidad, obra casi exclusiva de su hija la reina Isabel la Católica. Tras algunas reticencias de los monjes, por ser muy frío y carecer de agua, la comunidad se establece y el edificio es puesto bajo la advocación de San Francisco (Cartuja de San Francisco de Miraflores). Los monjes, que procedían de las cartujas de Scala Dei y de El Paular, se instalaron en el palacio-alcázar. Pero no duró mucho este primer monasterio, porque en 1454 un incendio obligó a plantear un edificio de nueva planta.
En 1453 se decidió construir el actual edificio. Entre los años 1454 y 1488 se desarrollan las obras del nuevo monasterio, que ahora es puesto bajo la advocación de Santa María de la Anunciación (de Miraflores). Las obras se encargaron a Juan de Colonia, que trabajaba por entonces en la catedral de Burgos, y comienzan en 1454. Ese año Enrique IV sucede a su padre, Juan II, y las obras quedan casi paradas.
Es en 1477 cuando son impulsadas por la reina Isabel la Católica. En su reinado se termina el Retablo Mayor y el sepulcro de Juan II de Castilla e Isabel de Portugal, situado en el presbiterio. La iglesia de la cartuja es sobre todo un panteón real, ocupado por la familia de Isabel. Cuando muere Juan de Colonia, continua la tracería arquitectónica Garci Fernández de Matienzo. Este muere de peste en 1478 y es sucedido por Simón de Colonia, hijo de Juan de Colonia. Las obras para cubrir el templo se terminan hacia 1488.
Entre 1532 y 1539, se emprenden otras obras arquitectónicas en el monasterio bajo la dirección de Diego de Mendieta, para crear las capillas laterales (lado izquierdo solo) y dotar de mayor altura a la iglesia. Se procede también a incorporar agujas y pináculos, y se coloca la crestería gótica.
Conjunto exterior
Planta
El monasterio sigue el modelo de otros monasterios cartujos de la Edad Media. La planta se desarrolla a partir de la colocación de la iglesia y el trazado de dos claustros principales para cada uno de los grupos de monjes cartujos que lo habitan: padres y hermanos. Alrededor de estos dos claustros están las ermitas individuales que permiten a los monjes vivir en la soledad y el silencio propios de la espiritualidad cartujana. Esta parte del monasterio no es visitable.
La planta de la iglesia está formada por una sola nave longitudinal cuatripartita, distinguiéndose los espacios del presbiterio, el coro de los Padres, el coro de los Hermanos y la estancia de los fieles. La nave está cerrada con bóvedas de crucería con terceletes, manteniéndose el original trazado de estilo gótico.
Portada

La portada de la iglesia se alzó en 1486 y fue ubicada originalmente en el lateral izquierdo del templo, proporcionando el acceso de los fieles directamente desde el exterior del monasterio. Está formada por arquivoltas apuntadas decoradas con vegetales, animales y algunos motivos figurativos humanos. La arquería está situada bajo un gran arco conopial con macollas. En el tímpano se representa el motivo de la Compasión de la Virgen, que conforme a los cánones iconográficos bajomedievales, presenta a la Virgen sentada sujetando con sus brazos a su Hijo muerto, y los símbolos de la luna y el sol sobre los brazos de la cruz.
Estilísticamente se vincula a la obra de los Colonia (padre e hijo), que intervinieron en el levantamiento del templo. Puede relacionarse también con otras portadas de otros templos burgaleses, como la iglesia de San Nicolás de Bari o la iglesia de San Lesmes.
Entre 1657 y 1659 se ordenó su traslado a la ubicación actual, la fachada oeste, a los pies de la nave del templo. Se accede a ella desde el patio de la portería. En 2010 se procedió a restaurar la portada para devolverla a su estado original y, además, recuperar la escultura de la Compasión de la Virgen.
Patio
Para acceder a la Iglesia y contemplar la portada hay que pasar por un patio ajardinado, cuya tracería data de la primera mitad del siglo XVI. Este patio sirve de conexión de las estancias del monasterio con las dependencias de servicio y la portería. Hay una estatua de San Bruno de Colonia, fundador de la Orden.
La galería porticada que precede al patio está formada por arcos de medio punto que sostienen bóvedas de arista rebajadas, rematadas en claves con decoración modular. En 2010 se intervino el claustro para asegurar el mantenimiento de los muros y consolidar la salida de aguas del patio, que sufría las inclemencias del tiempo.
Conjunto interior
Retablo Mayor
El retablo mayor de la Cartuja fue tallado en madera por el artista Gil de Siloé y policromado y dorado por Diego de la Cruz, con oro que procedía de los primeros envíos del continente americano tras el descubrimiento.[4] Realizado entre 1496 y 1499, se trata sin duda de una de las obras más importantes de la escultura gótica hispana, por su originalidad compositiva e iconográfica y la excelente calidad de la talla, valorada por la policromía.
_-_Retablo_mayor_y_tumba_de_Juan_II.jpg.webp)
Uno de los elementos más destacados del retablo es la rueda angélica en la que se enmarca la imagen de Cristo crucificado, de belleza y expresividad acentuadas significativamente por el trabajo de policromía de Diego de la Cruz. En la parte más externa de la rueda se sitúan las figuras de Dios Padre, a la izquierda, y del Espíritu Santo, a la derecha, sosteniendo el travesaño de la cruz.
En la parte inferior del madero, completan la escena las figuras de la Virgen María y San Juan Evangelista. El pelícano situado en la parte superior de la cruz confiere al conjunto central un gran valor simbólico, alegoría del sacrificio eucarístico, porque el ave alimenta a sus crías con su propia sangre.[5]
En el retablo también se ubican las efigies orantes de Juan II de Castilla, vestido con un manto dorado con la divisa del Ristre, y de su esposa la reina Isabel de Portugal.[6][7][8][9]
Sepulcros Reales
_-_Tumba_de_Juan_II.jpg.webp)
El conjunto de sepulcros reales fue obra del artista Gil de Siloé por encargo de la reina Isabel la Católica. Por una parte se encuentra colocado en el centro de la nave el sepulcro de Juan II e Isabel de Portugal, que tiene forma de estrella de ocho puntas. Y, en el lado del Evangelio de la iglesia, se encuentra colocado el sepulcro del infante Alfonso de Castilla. Ambos sepulcros fueron realizados en alabastro y son joyas de la escultura del gótico tardío.
Sepulcro de los reyes Juan II e Isabel de Portugal
El sepulcro de Juan II de Castilla y de su segunda esposa, Isabel de Portugal, está realizado en alabastro y es de estilo gótico. Tiene planta octogonal en forma de estrella de ocho puntas, resultado de la superposición de un cuadrado y un rombo. Los vértices de la estrella de ocho puntas que da forma al sepulcro están adornados con figuras alegóricas, imágenes de santos, apóstoles y, en las esquinas mayores del sepulcro aparecen las imágenes sedentes de los cuatro evangelistas. Completan la abundante decoración del sepulcro, tanto en torno al lecho mortuorio como en el soporte de la estrella, una serie de escudos reales, figuras de animales, decoraciones vegetales y motivos arquitectónicos. El zócalo que separa el sepulcro del suelo está decorado con figuras de animales y motivos vegetales.
La estatua yacente representa al rey Juan II de Castilla, con su cabeza coronada, descansando sobre dos almohadones y vuelta ligeramente hacia el exterior. El rey está cubierto con un rico manto y adornado con numerosas joyas. En la mano derecha, mutilada en la actualidad, sostenía el cetro real, y con la mano izquierda el monarca recoge los pliegues de su manto real. El rey calza chapines que se apoyan en una peana bajo la que aparecen dos leones que están luchando y tienen entrecruzadas sus patas.[10]
La estatua yacente representa a la reina Isabel de Portugal, con su cabeza coronada, descansando sobre dos almohadones y vuelta ligeramente hacia el exterior. La estatua yacente muestra a la reina más recostada que su esposo y apoyando ligeramente el peso de su cuerpo sobre su brazo izquierdo. La reina viste ropa larga hasta los pies con sobretúnica y el manto con el que se cubre está adornado con aljófares y pedrerías. En las manos lleva guantes y varios anillos, y ambas manos sostienen un devocionario abierto. A los pies de la reina están colocados un niño, un león y un perro, símbolo este último de fidelidad conyugal.
Sepulcro del Infante Alfonso

El sepulcro del infante Alfonso de Castilla está realizado en alabastro y es de estilo gótico. Es de tipo arcosolio, y está rematado por un arco conopial con arcada angrelada, adornado todo ello con motivos vegetales, perdidos en buena parte, ángeles tenantes que sostienen el escudo del reino de Castilla y León, y una imagen del Arcángel San Miguel que remata el conjunto. El sepulcro está enmarcado por dos pilastras que, partiendo del suelo de la iglesia, se prolongan en altura más allá de los arcos escarzano y conopial. Las pilastras están adornadas con imágenes de apóstoles y santos, y están coronadas por un relieve que representa la Anunciación.
Tríptico del Calvario

En la estancia de los fieles está ubicado un tríptico de factura flamenca que data de finales del siglo xv que representa la Pasión del Señor. Atribuido a la escuela de Rogier van der Weyden, desarrolla en el panel izquierdo el motivo del camino del Calvario, donde Cristo lleva la cruz a cuestas hasta el monte Gólgota. En el panel central, Cristo crucificado en el centro y acompañado de los dos ladrones. En la escena del plano frontal pueden verse a la Virgen, María Magdalena y el discípulo Juan. En el panel derecho se representa el Descendimiento. Toda la obra destaca por la calidad pictórica del tratamiento anatómico de las figuras y por el detallismo y la minuciosidad en las pinceladas.
Coro de los Padres

Componen el coro de los Padres cuarenta sitiales distribuidos en dos grupos de veinte a cada uno de los lados de la nave y un grupo de diez en el muro trasero de los altares barrocos. Este espacio, reservado a los Padres cartujos para el rezo de las Horas, fue realizado en madera de nogal entre 1486 y 1489 por el escultor Martín Sánchez y decorado con diversos motivos ornamentales. A las sillas de los padres se suman tres muebles fijos: la silla del celebrante, el facistol y el atril que hacen juego con el conjunto de sitiales.
Tras la destrucción de algunas sillas durante el período de las invasiones francesas de 1808, estas fueron sustituidos por nuevas piezas de autor desconocido.
Coro de los Hermanos
El coro de los Hermanos, situado en el espacio contiguo al coro de los Padres, se organiza en catorce sillas de madera situándose siete a cada uno de los lados. La talla fue realizada por el escultor Simón de Bueras hacia 1558 en presunta colaboración con Esteban Xaques y Juan de Sabugo. La abundante decoración de influencia italiana en los paneles dorsales se completa con la representación en la parte superior central de diversos motivos de temática hagiográfica.
Altares menores
En el muro divisorio entre el Coro de los Hermanos y el de los Padres, una puerta central separa dos altares con sendos retablos gemelos realizados en 1659 por los escultores Policarpo de Nestosa y Bernardo de Elcarreta. La profusión de ornamentos en ambas piezas se completa por varias pinturas distribuidas a lo largo de las calles de los retablos en diferentes paneles con escenas de la vida de Cristo e imágenes de Santos. Remata el conjunto la imagen de la Inmaculada Concepción rodeada de ángeles atribuida a Bernardo Elcarreta.
Sacristía
En la sacristía de la iglesia de la Cartuja se conserva un retablo datado en el siglo XVIII pero con tres tablas anteriores de estilo barroco (siglo XVII). La más importante, atribuida al pintor riojano Diego de Leyva donde se puede ver la escena de la Adoración del Niño Jesús por los pastores. Las otras dos tablas de la época representan respectivamente a San Hugo, obispo de Lincoln y a San Hugo, obispo de Grenoble.
Vidrieras
.jpeg.webp)
En 1484 Martín de Soria encarga y sufraga la realización de trece vidrieras en la región de Flandes para adornar los muros de la iglesia de la Cartuja, siendo finalmente ensambladas en 1488.
En la mayor parte del encargo –diez de las trece vidrieras– intervino el vidriero flamenco Niclaes Rombouts de acuerdo con las firmas halladas en las obras, las correspondientes a los muros de la nave central.[11] Las vidrieras desarrollan un programa iconográfico compuesto por escenas de la Pasión de Cristo. En el muro izquierdo de la nave se representan en cinco vidrieras con escenas de la Pasión: La oración en el huerto, La flagelación, La coronación de espinas, El camino del Calvario y La Crucifixión. En el muro derecho completan el ciclo de la vida de Cristo cinco vidrieras con las escenas de El descendimiento de Cristo, La Resurrección del Señor, La Ascensión del Señor, Pentecostés, El Juicio Final.

Por lo que respecta a las vidrieras del ábside, no atribuidas a Rimbouts, desarrollan tres escenas de la vida de la Virgen y de la infancia de Cristo: La Adoración de los Magos, La coronación de la Virgen, y La presentación en el Templo.
Como consecuencia de la degradación de los materiales fue realizada una intervención entre 2003 y 2006 una restauración con el fin de conservar y prevenir el deterioro del conjunto de vidriera.
Capilla de San Bruno
Dentro de la capilla de San Bruno, de acceso desde el patio de entrada de la Cartuja, se encuentra una estatua del fundador de la Orden Cartuja, San Bruno, realizada por el escultor Manuel Pereira en el siglo XVII. De madera dorada y policromada, presenta suaves plegados que caen verticalmente en el traje del santo. Sostiene un crucifijo que mira atentamente y su mirada conmueve al espectador por su expresividad.
Exposición permanente
.jpg.webp)
En las capillas laterales de la iglesia de la cartuja se sitúa la exposición «De lo bello a lo divino», incluida dentro del recorrido visitable de la Cartuja. En ella se muestra al público una variada selección de piezas de primera calidad entre las que se incluyen obras de Gil de Siloé, Pedro Berruguete o Joaquín Sorolla, entre otros.
La Anunciación
Obra del pintor Pedro Berruguete a finales del siglo XV es una de las piezas más destacadas de la colección. La Anunciación destaca por el detallismo en los objetos y el interesante juego de perspectivas, que crea una perfecta ilusión espacial. En todas estas obras las figuras aparecen muy individualizadas, y el dominio del espacio, la perspectiva y la composición se enriquece con un certero sentido del dibujo y una sabia utilización del color.
Bojarte
Entre los muebles litúrgicos exhibidos figura también un bojarte, es decir, una tabla para organizar las misas, que actuaba como un cuadrante de horarios permitiendo a los monjes señalar los diferentes turnos y responsabilidades en la liturgia monástica. Se trata de una pieza singular y de un gran valor histórico por proceder de los primeros años de la fundación de esta Cartuja, hacia 1442.[12]
Vestimentas litúrgicas
Entre los ornamentos litúrgicos conservados para los distintos oficios litúrgicos del rito cartujano se exponen varios de excepcional belleza. Datados de los siglos XVI y XVII, los materiales procedían en algunos casos de donaciones reales de los más finos tejidos.
Orfebrería litúrgica
Además de las vestiduras sagradas también son necesarios diversos elementos materiales para el culto como los vasos sagrados. Entre estos, se conservan un conjunto de cáliz, patena y cucharilla, denominado «De Juan II» que data de los ss. xv y xvi y otro grupo similar pero cuya factura se remonta a la primera mitad del siglo XX.
Capilla de Santa María de Miraflores
Está ubicada anexa a la nave principal de la iglesia de la Cartuja. Fue mandada decorar por Fray Nicolás de la Iglesia, con pinturas al fresco datadas en el siglo XVII. Los diversos elementos decorativos con recursos pictóricos, como trampantojos o claroscuros, abordan temáticas vinculadas a la vida de la Virgen, destacando la Coronación de la Virgen que se representa en la bóveda. Actualmente preside esta capilla una talla de la Virgen Inmaculada, perteneciente a la escuela de Alonso Cano.
La Elevación de la Cruz
Esta pintura al óleo sobre tabla representa la Elevación de la Cruz mide 65x50 cm y ha sido atribuida a Joaquín Sorolla. Representa el momento en el que Cristo es alzado una vez clavado en la cruz. En la parte inferior, la Virgen y San Juan completan la composición desde la izquierda.
Obras dispersas fuera del monasterio
Además de las múltiples obras conservadas en la exposición permanente, otras obras han sido vinculadas históricamente al monasterio, ya sea porque fueron encargadas por la Cartuja o porque fueron donadas originalmente a Miraflores, aunque hoy no se encuentren allí.
_-_Google_Art_Project.jpg.webp)
Tríptico de Miraflores
En 1445, el rey Juan II de Castilla donó el llamado Tríptico de Miraflores (Berlín, Gemäldegalerie), obra del pintor flamenco Rogier van der Weyden, a la Cartuja de Miraflores. La tabla muestra tres momentos de la vida de Cristo y la Virgen: la Natividad, el Descendimiento, y la aparición de Cristo resucitado a la Virgen María.
El tríptico fue descrito con precisión por Antonio Ponz en el tomo XII de su Viage de España, editado en Madrid en 1788, donde recogía la noticia de la donación tomada del libro Becerro del monasterio, en el que de forma excepcional quedaba recogido el nombre del pintor: «Magistro Rogel, magno, & famoso Flandresco».[13][14]
Durante la invasión napoleónica la tabla fue expoliada de la Cartuja por el general Darmagnac. Actualmente se exhibe en la Gemäldegalerie de Berlín.[15]
Tríptico de San Juan Bautista
Además del Tríptico de Miraflores, en el transcurso de la Guerra de la Independencia el general Darmagnac robó también con un conjunto de 5 tablas que formaban el Tríptico de San Juan Bautista, obra del pintor flamenco Juan de Flandes. Actualmente las diversas tablas están dispersas entre distintos museos y una colección privada.
Otras obras
Además de las obras mencionadas anteriormente podemos destacar el Tríptico de la Vida de San Juan Bautista del Maestro de Miraflores y que tras pasar por el Museo de la Trinidad, ha ido a parar al Museo Nacional del Prado en Madrid. También en 1914 un particular sustrajo varias imágenes de alabastro del Sepulcro de los Reyes, con el pretexto de restaurarlas. Entre ellas destaca la talla de Santiago Apóstol, conservada actualmente en The Cloisters del Metropolitan Museum of Art de Nueva York.
Los monjes de la Cartuja
La Cartuja de Miraflores está habitada por monjes de la Orden Cartuja desde su fundación, y han residido en ella de forma continuada a lo largo de la historia. En la definitiva de 1835 la Cartuja de Miraflores fue afectada por la desamortización. Siempre hubo monjes cartujos en la Cartuja de Santa María de Miraflores pero a título individual durante los efectos de la desamortización, bajo la jurisdicción del arzobispo diocesano.
El fundamento de su vida está basado en la alabanza de Dios y el rezo por las necesidades del mundo desde una vocación ermitaña. Los monjes viven en celdas (ermitas) independientes, en soledad y silencio. Dentro de la celda los monjes rezan a la Virgen cada vez que entran, desarrollan trabajos y se dedican a la lectura y meditación. Únicamente salen de su celda para rezar las horas en el oratorio o la iglesia y para momentos concretos de la vida comunitaria, como el paseo semanal o el recreo dominical, en los cuales los monjes comparten el tiempo juntos.
Las vocaciones de los Cartujos
Los monjes cartujos admiten la incorporación de nuevas vocaciones en su monasterio. Como norma general, la edad más adecuada está entre los 20 y los 45 años para entrar como postulante. Hasta convertirse en cartujo, han de superarse algunas fases que garantizan la adecuación a la vida contemplativa. La Cartuja tiene una página web específica con información vocacional.
Información práctica: visitas y culto
La iglesia de la Cartuja, las capillas laterales con la exposición permanente, el patio de entrada y la capilla de San Bruno pueden ser visitados. El resto del complejo monástico no está abierto al público, ya que dentro habitan monjes cartujos en clausura.
- Horarios de visita al público:
- Lunes a sábados: 10:15 a 15:00 y de 16:00 a 18:00.
- Domingos y festivos: 11:00 a 15:00 y de 16:00 a 18:00.
- Las excepciones a estos horarios pueden consultarse en la página web del monumento.[16]
- Tarifas: donativo.
- Servicios a disposición del visitante:
- Aseos diferenciados.
- Asistencia y accesibilidad para personas con movilidad reducida.[17]
- Material explicativo.
- Tienda de productos exclusivos del monasterio.
- Aparcamiento exterior gratuito.
- Reserva de grupos: Los grupos de cualquier tipo pueden programar su visita a través del sistema en línea de la propia Cartuja de Miraflores en su página web.[18]
- Investigadores: el personal investigador, debidamente acreditado, que desee visitar con este motivo la Cartuja de Miraflores dispone de formularios específicos para acceder a ciertos espacios con fines de investigación, así como para utilizar el material fotográfico.[19]
- Culto: se celebran misas para los fieles los domingos y festivos a las 10:15. Los festivos pueden consultarse en la página web del monasterio.
Fuentes escritas
Las fuentes para el estudio de la cartuja de Miraflores incluyen escritos de diversa índole publicados:
- Compendio del Libro Becerro, titulado Noticia breve y compendiosa de la fundación de esta Cartuja de Miraflores sacada del Libro Becerro con otras noticias dignas de saberse, y que abarca los sucesos y privilegios concedidos a la Cartuja desde 1442 hasta 1764.
- Otras fuentes, entre las que destacan las siguientes contribuciones:
- Iglesia, Fr. Nicolás, «Flores de Miraflores hieroglíficos sagrados, verdades figuradas, sombras verdaderas del Mysterio de la Inmaculada Concepción de la Virgen y Madre de Dios María Nuestra Señora […]»,Burgos, 1659.
- Vallés, José de, «Primer Instituto de la Sagrada Religión de la Cartuxa: fundaciones de los conventos de toda España, mártires de Inglaterra y generales de toda la orden» Madrid, 1663.
- Arias de Miranda, Juan, «Apuntes históricos sobre la Cartuja de Miraflores de Burgos» Burgos, 1843.
- Tarín y Juaneda, Francisco, «La Real Cartuja de Miraflores (Burgos). Su Historia y descripción», Burgos, 1896.
- Romaniega García, Ricardo, "El silencio transformado en arte" Descripción artística e histórica Cartuja de Miraflores, Burgos. Círculo rojo, 2021.
Véase también
Referencias
- El Retrospective Inventory - Associated Components, elaborado en 2014, puede consultarse en en el sitio oficial de la UNESCO, en la entrada «Routes of Santiago de Compostela: Camino Francés and Routes of Northern Spain», en el apartado Documentos, en el archivo «Nomination file 669bis» (285 MB), disponible en línea en: http://whc.unesco.org/es/list/669/documents/. Consultado el 31 de julio de 2017.
- «Cómo llegar - Web Oficial de la Cartuja de Miraflores». Archivado desde el original el 23 de septiembre de 2015. Consultado el 27 de agosto de 2015.
- Estracto del privilegio fundacional de la Cartuja por Juan II de Castilla.
- «Burgos 1497, llegada de los primeros indios a Europa». Las crónicas de Yagüe Garcés. 2009.
- Mitologías y leyendas
- Fernández de Córdova Miralles, Álvaro (2012). «Las divisas del rey: escamas y ristres en la corte de Juan II de Castilla». Reales Sitios: Revista del Patrimonio Nacional (Madrid: Patrimonio Nacional) (191). ISSN 0486-0993.
- García García, Francisco de Asís (2015). «Vestiduras emblemáticas: heráldica y divisas en la indumentaria bajomedieval (una aproximación)». Diseño de moda: Teoría e historia de la indumentaria (1). ISSN 2444-8370.
- «Retablo Mayor». Cartuja de Miraflores. Consultado el 22 de marzo de 2023.
- Varios autores (2007). La Cartuja de Miraflores. II. El retablo. Madrid: Fundación Iberdrola. Cuaderno de Restauración de Iberdrola XIII. p. 9. ISBN 978-84-934989-4-8.
- Elorza et al., 1990, p. 67.
- van Damme, Jan (2010). «Niclaes Rombouts y las vidrieras de la Cartuja de Miraflores». Las vidrieras de la Cartuja de Miraflores. Archivado desde el original el 8 de diciembre de 2015.
- Óscar Esquivias, «El caso Bojarte», Diario de Burgos, 2 de noviembre de 2014, pág. 5.
- Lorne Campbell y Jan Van der Stock (2009), p. 34.
- Según la transcripción de Antonio Ponz, Viage de España, vol. 12, p. 58: «Anno 1445 donavit praedictus Rex (Don Juan) pretiosissimum, & devotum oratorium, tres historias habens; Nativitatem, scilicet, Jesu-Christi, Descensionem ipsius de cruce, quae alias Quinta Angustia nuncupatur, & Aparittionem eiusdem ad Matrem post Resurrectionem. Hoc oratorium à Magistro Rogel, magno, & famoso Flandresco, fuit depictum».
- Antigüedad del Castillo-Olivares, María Dolores, «Arte y coleccionismo en Burgos durante la ocupación francesa», Espacio, Tiempo y Forma, serie VII, Historia del Arte, t. 2 (1989), pp. 329-342, p. 336.
- «Horarios - Web Oficial de la Cartuja de Miraflores». Consultado el 21 de julio de 2015.
- «La Cartuja de Miraflores, accesible». Archivado desde el original el 25 de septiembre de 2015. Consultado el 21 de julio de 2015.
- «Reserva de Grupos - Web Oficial de la Cartuja de Miraflores». Archivado desde el original el 25 de septiembre de 2015. Consultado el 27 de agosto de 2015.
- «Investigadores - Web Oficial de la Cartuja de Miraflores». Archivado desde el original el 26 de septiembre de 2015. Consultado el 27 de agosto de 2015.
Bibliografía
- Ainsworth, Maryan Wynn. Early Netherlandish Painting at the Crossroads: A Critical Look at Current Methodologies. New York: Metropolitan Museum of Art. p. 96. ISBN 1588390101.
- Álvarez, Arturo; Anacleto, Regina; Bermejo, Elisa (2002). Pedro Navascués Palacio, ed. Isabel la Católica, reina de Castilla (en inglés) (1ª edición). Madrid: Lunwerg. ISBN 84-7782-898-9.
- Andrés González, Patricia (2003-2004). «Emblemas marianos de la Capilla de la Virgen en la Cartuja de Burgos: el modelo pintado y su repercusión iconográfica». Boletín del Seminario de Estudios de Arte y Arqueología (BSAA). 69-70: 383-409. ISSN 0210-9573.
- Andrés González, Patricia (2009). «Las pinturas barrocas de la capilla de la Virgen de Miraflores (Burgos)». En Jesús María Parrado del Olmo, ed. Estudios de historia del arte: homenaje al profesor de la Plaza Santiago: 63-70. ISBN 978-84-8448-521-6.
- Arco y Garay, Ricardo del (1954). Instituto Jerónimo Zurita. Consejo Superior de Investigaciones Científicas, ed. Sepulcros de la Casa Real de Castilla (1ª edición). Madrid.
- Arias de Miranda, Juan (1843). Apuntes Históricos Sobre la Cartuja de Miraflores de Burgos. Pascual Polo.
- Brown, Jonathan (1998). Painting in Spain: 1500-1700 (en inglés). Yale University Press. pp. 16-19, 46. ISBN 0300064748.
- Calzada Toledano, Juan José (2001). «El tema de la Inmaculada en Gil de Siloe: La Virgen con el Niño en la Cartuja de Miraflores». En Centro Cultural "Casa del Cordón", ed. Actas del Congreso Internacional sobre Gil Siloe y la Escultura de su época (Burgos, 13-16 octubre de 1999): 395-402. ISBN 84-95874-02-4.
- Cañas Gálvez, Francisco de Paula (2007). El itinerario de la corte de Juan II de Castilla (1418-1454). Sílex Ediciones. pp. 86, 122-123, 150. ISBN 8477371873.
- Cañas Gálvez, Francisco de Paula (2012). Burocracia y cancillería en la corte de Juan II de Castilla (1406-1454): estudio institucional y prosopográfico. Salamanca: Ediciones Universidad de Salamanca. p. 225. ISBN 8478002219.
- Carlat, Michel (2003). «Les prieurs des Chartreuses Royales de El Paular et de Miraflores cités dans l'obituaire de Bonnefoy en Vivarais». En Concepció Bauçà de Mirabò Gralla, ed. Prínceps i reis: promotors de l'orde cartoixà (en francés): 331-340. ISBN 84-7632-812-5.
- Carmona, N.; Villegas Broncano, María Ángeles (2005). «Vidrios y grisallas del s. xv de la Cartuja de Miraflores (Burgos): Caracterización y estado de conservación». Boletín de la Sociedad Española de Cerámica y Vidrio 44 (4): 251-258. ISSN 0366-3175.
- Carmona, N.; Villegas Broncano, María Ángeles (2006). «Estudio analítico de vidrios procedentes de las vidrieras del s. xv de la Cartuja de Miraflores (Burgos)». En Javier Rivera Blanco, ed. Arqueología, arte y restauración: actas del IV Congreso Internacional "Restaurar la Memoria" (Valladolid): 709-722. ISBN 84-9718-360-6.
- Caro Dobón, Luis; Fernández Suárez, María Edén; Martínez López, Francisco José (2008). «Estudio antropológico del Rey Juan II de Castilla, Cartuja de Miraflores (Burgos, España)». En José Luis Nieto Amada, Jesús Ángel Obón Nogués, Salvador Baena Pinilla, ed. Genes, ambiente y enfermedades en poblaciones humanas: 281-300. ISBN 978-84-92521-49-4.
- Caro Dobón, Luis; Fernández Suárez, María Edén (2008). «Los enterramientos reales de la Cartuja de Miraflores». Ambio Ciencias: revista de divulgación (León: Universidad de León: Servicio de Publicaciones) (2): 23-37. ISSN 1988-3021. Consultado el 27 de noviembre de 2013. (enlace roto disponible en Internet Archive; véase el historial, la primera versión y la última).
- Caro Dobón, Luis; Fernández Suárez, María Edén (2010). «Estudio antropológico del Infante Rey Don Alfonso de Castilla (s. xv) en la Cartuja de Miraflores. (Burgos, España)». En Esperanza Gutiérrez Redomero, Ángeles Sánchez Andrés, Virginia Galera Olmo, ed. Diversidad humana y antropología aplicada: 435-446. ISBN 978-84-614-2257-9.
- Castresana López, Álvaro; Izquierdo Yusta, Carlos; Rettschlag Guerrero, Pablo Kurt (2012). «Dos inscripciones inéditas de la Cartuja de Miraflores (Burgos) y un refrán medieval en el sepulcro de Juan II e Isabel de Portugal». Burgense: Collectanea Scientifica 53 (2): 467-479. ISSN 0521-8195.
- Déniz Yuste, Hortensia; Bauçà de Mirabò Gralla, Concepció (2003). «La Cartuja de Miraflores. Donación real». En Concepció Bauçà de Mirabò Gralla, ed. Prínceps i reis : promotors de l'orde cartoixà (ubicación=): 355-366. ISBN 84-7632-812-5.
- Drees, Clayton J. (2001). The Late Medieval Age of Crisis and Renewal, 1300-1500: A Biographical Dictionary (en inglés). Greenwood Publishing Group. pp. 500-501. ISBN 0313305889.
- Elorza, Juan C.; Vaquero, Lourdes; Castillo, Belén; Negro, Marta (1990). Junta de Castilla y León. Consejería de Cultura y Bienestar Social, ed. El Panteón Real de las Huelgas de Burgos. Los enterramientos de los reyes de León y de Castilla (2ª edición). Editorial Evergráficas S.A. ISBN 84-241-9999-5.
- Garrido Pérez, María del Carmen (1978). «Contribución al estudio de la obra de Pedro Berruguete, utilizando los métodos físico-químicos de examen científico: "La Anunciación" de la Cartuja de Miraflores (Burgos)». Archivo español de arte 51 (203): 307-322. ISSN 0004-0428.
- Hand, John Oliver; Wolff, Martha (1986). Early Netherlandish Painting (en inglés). Cambridge University Press. p. 241. ISBN 0894680935.
- Hogg, James; Zubilaga, Francisco (1979). Charterhouse of Miraflores (en inglés). Universitat Salzburg: Institut fur Anglistik und Amerikanistik.
- Hourihane, Colum (2012). The Grove Encyclopedia of Medieval Art and Architecture. Vol. 2 url = https://books.google.es/books?id=FtlMAgAAQBAJ&dq. Oxford University Press. pp. 128, 174, 188, 196, 460, 590, 623. ISBN 0195395360.
- Kren, Thomas; McKendrick, Scot (2003). Illuminating the Renaissance: The Triumph of Flemish Manuscript Painting in Europe (en inglés). Getty Publications. p. 90. ISBN 0892367040.
- Lipińska, Aleksandra (2014). Moving Sculptures: Southern Netherlandish alabasters from the 16th to 17th centuries in Central and Northern Europe (en inglés). BRILL. p. 334. ISBN 9004277080.
- Liss, Peggy K. (2004). Isabel the Queen: Life and Times (en inglés). University of Pennsylvania Press. pp. 14, 53, 106, 135, 150, 169, 234, 394. ISBN 0812218973.
- Maguire, Nancy Klein (2007). An Infinity of Little Hours: Five Young Men and Their Trial of Faith in the Western World's Most Austere Monastic Order (en inglés). PublicAffairs. p. 25. ISBN 158648432X.
- Martens, Didier (2001). «Identificación del Quadro flamenco de la Adoración de los Reyes, antiguamente en la Cartuja de Miraflores». Actas del Congreso Internacional sobre Gil Siloe y la Escultura de su época: Burgos, 13-16 octubre de 1999 (Centro Cultural "Casa del Cordón"): 71-90. ISBN 84-95874-02-4.
- Pereda Espeso, Felipe (2001). «El cuerpo muerto del rey Juan II, Gil de Siloé, y la imaginación escatológica. (Observaciones sobre el lenguaje de la escultura en la alta Edad Moderna)». Anuario del Departamento de Historia y Teoría del Arte (Madrid: Universidad Autónoma de Madrid: Departamento de Historia y Teoría del Arte) (13): 53-86. ISSN 1130-5517. Consultado el 20 de agosto de 2011.
- Ridderbos, Bernhard; van Veen, Henk Th.; van Buren, Anne (2005). Early Netherlandish Paintings: Rediscovery, Reception and Research (en inglés). Amsterdam University Press. p. 298. ISBN 9053566147.
- Sánchez Domingo, Rafael (2004 ubicación =). Privilegios reales de la Cartuja de Miraflores: el patrimonio jurisdiccional de Burgos, pleito contra el Hospital del Rey. Universidad de Burgos. ISBN 8495211955.
- Sandoval, José (2013). «El "Santiago" de Gil de Siloé en Manhattan y en la Cartuja de Miraflores». Peregrino: revista del Camino de Santiago (149): 9. ISSN 1576-0065.
- Santa María de Miraflores, por un monje cartujo (2ª edición). Burgos: Caja de Ahorros Municipal de Burgos. 1992. ISBN 84-87152-02-3.
- Tarín y Juaneda, Francisco. La Real Cartuja de Miraflores (Burgos): su historia y descripción (reimpresa año=2011 edición). Maxtor. ISBN 849001129X.
- Teijeira Pablos, María Dolores (1997). «Un ejemplo de iconografía marginal funeraria: la orla del sepulcro del infante Alfonso en la Cartuja de Miraflores». Reales Sitios: Revista del Patrimonio Nacional (133): 35-43. ISSN 0486-0993.
- Torné Payatos, Angelina; Díaz Padrón, Matías (1986). «El Maestro de Miraflores, pintor de la "Tabla de la Virgen de los Reyes Católicos" del Museo del Prado». Boletín del Museo del Prado 4 (19): 5-12. ISSN 0210-8143.
- Yarza Luaces, Joaquín (2012). «El sepulcro real de Miraflores». Ars magazine: revista de arte y coleccionismo (14): 88-89. ISSN 1889-1462.
Enlaces externos
Wikimedia Commons alberga una categoría multimedia sobre Cartuja de Miraflores.- Página web oficial de la Cartuja de Miraflores

.jpg.webp)
