Palacio de Antíoco
El Palacio de Antíoco (griego: τὰ παλάτια τῶν Ἀντιόχου),[1] fue un palacio de principios del siglo V en la capital bizantina, Constantinopla (la moderna Estambul, Turquía). Se ha identificado con una estructura palaciega excavada en las décadas de 1940 y 1950 cerca del Hipódromo de Constantinopla, algunos de cuyos restos están visibles. En el siglo VII, una parte del palacio fue convertida en iglesia -más propiamente un martyrium-, de Santa Eufemia en el Hipódromo (Ἀγία Εὐφημία ἐν τῷ Ἱπποδρομίῳ), que sobrevivió en el Imperio bizantino bajo la dinastía Paleólogo hasta el siglo XV.
| Palacio de Antíoco | ||
|---|---|---|
![]() Mapa del corazón ceremonial y administrativo de Estambul que muestra el Palacio de Antíoco en el lado occidental del hipódromo. Las estructuras supervivientes o excavadas están de color negro, los contornos conjeturales de las estructuras de color gris y la parte sombreada corresponde al área ocupada por la Mezquita de Sultanahmet y otras estructuras posteriores. | ||
| Datos generales | ||
| Tipo | palacio | |
| Estado | demolido o desaparecido | |
| Estilo | Bizantino | |
| Localización | Estambul, Turquía (Turquía) | |
| Coordenadas | 41°00′27″N 28°58′30″E | |
| Nombrado por | Antiochus | |
Historia
Palacio de Antíoco
El palacio de Antíoco se construyó como residencia de Antíoco, un eunuco de origen persa, que gozó de una considerable influencia durante el reinado de Teodosio II (r. 408-450). Ocupó los cargos de cubicularius (chambelán), y tutor del joven emperador y finalmente ascendió al puesto de praepositus sacri cubiculi y al rango de patricio.[2] Su actitud prepotente y su dominio sobre el joven emperador causaron su caída (la fecha es discutida) por la hermana del emperador, Pulqueria, que lo alejó de la corte, pero se le permitió retirarse a su palacio y vivir allí. Sin embargo, permaneció activo en asuntos de la política hasta que alrededor del 439, cayó en desgracia y tomó los votos.[3] Después de esto, sus propiedades, incluyendo el palacio, fueron confiscadas por el emperador.[4]
El palacio fue descubierto por primera vez en 1939, cuando se encontraron frescos que representan la vida de santa Eufemia de Calcedonia al noroeste del Hipódromo. Excavaciones posteriores en 1942 por Alfons Maria Schneider, sacaron a la luz una sala hexagonal abierta a un pórtico semicircular, mientras que las excavaciones de 1951-1952 bajo la dirección de R. Duyuran permitieron el descubrimiento de una base de columna con la inscripción «del praepositus Antíoco», que permitió la identificación del sitio.[4][5] Basándose en los sellos de los ladrillos recuperados del sitio, J. Bardill propone una fecha de construcción no anterior al 430.[6]
Iglesia de Santa Eufemia
.png.webp)
La Iglesia de santa Eufemia en el Hipódromo, también conocida como in ta Antiochou, es decir, («en [el palacio de] Antíoco»),[4] se estableció en la sala hexagonal probablemente en algún momento de principios del siglo VII, cuando la iglesia original de Calcedonia fue destruida durante las invasiones persas sasánidas, y las reliquias de la santa, se trasladaron por seguridad a Constantinopla.[7][8] Originalmente la capilla occidental tenía frescos que representaban el martirio de Santa Eufemia, y el santuario tenía una cúpula con dosel.[9] Durante la iconoclasta del imperio bizantino, el edificio fue secularizado y supuestamente convertido en un almacén de armas y estercolero.[10] Según la tradición, los huesos de la santa fueron ordenados ser arrojados al mar por el emperador León III (r. 717-741) o por su hijo, Constantino V (r. 741-775). No obstante, fueron salvados por dos piadosos hermanos y llevados a la isla de Lemnos, de donde fueron devueltos en el 796, tras el final del primer período de iconoclasia, por la emperatriz Irene (r. 797-802).[11] La iglesia sobrevivió hasta el final del imperio bizantino, siendo redecorada a finales del siglo XIII con frescos de la época de la dinastía de los Paleólogos.[12]
Arquitectura original del palacio

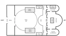
El palacio original consistía en dos secciones, una sureña y otra norteña. El sur, inaccesible al público, tenía un gran salón hexagonal con ábside, que más tarde se convirtió en la Iglesia de Santa Eufemia, conectada a un amplio pórtico semicircular de unos 60 m de diámetro y que encerraba un patio pavimentado con mármol.[4] El salón hexagonal originalmente sirvió probablemente como comedor (triclinio). El diámetro del salón es de unos 20 m, con cada lado del hexágono de 10,4 m de ancho. Cada lado tenía un nicho absidal, poligonal en el exterior y semicircular en el interior, cada uno de 7,65 m de ancho y 4,65 m de profundidad, dando así espacio a un banco semicircular (stibadium) y a una mesa de comedor.[4][13] Cada ábside tenía también una puerta que comunicaba con pequeñas salas circulares, situadas entre los ábsides. Una piscina de mármol estaba situada en el centro del salón, una característica común en la Antigüedad tardía. El triclinio hexagonal estaba flanqueado por otras habitaciones, agrupadas a lo largo de la curva exterior del gran pórtico, incluyendo un elaborado vestíbulo con una habitación circular en su centro.[4]
La sección norte, situada entre la calle que corría a lo largo del muro occidental del Hipódromo de Constantinopla, fue hasta hace poco tiempo mal identificada como el Palacio de Lauso.[4] Comprendía una gran rotonda de 20 m de diámetro con nichos en la pared, que parece haber funcionado como sala de audiencias para Antíoco, estaba adosada a un pórtico en forma de C orientado al sudeste, abierto a la calle a lo largo del Hipódromo. Una pequeña casa de baños, también accesible desde la calle, se encontraba junto al lado sur del pórtico.[4] En el siglo V, cuando el palacio era propiedad imperial, se añadió un pasillo alargado a la rotonda del oeste, al que se accedía a través de un vestíbulo de doble capa. Su forma apunta a su uso como triclinio. Tenía 52,5 m de largo y 12,4 m de ancho con un ábside en su extremo, mientras que en el siglo VI se añadieron seis ábsides en cada uno de sus lados largos.[4]
Conversión en una iglesia

El salón hexagonal se convirtió en iglesia haciéndose varias modificaciones: El bema o altar, se colocó a la derecha de la entrada original, en el ábside que mira al sureste, y se abrió otra entrada en el ábside opuesto. La puerta original se mantuvo en uso, pero se estrechó en algún momento posterior. Se abrieron otras dos puertas en las dos salas circulares del norte, a las que finalmente se unieron dos mausoleos.[13]
Las excavaciones descubrieron los restos del synthronon -asientos para el clero y una cátedra-, los cimientos del altar, la barrera del templón y un elevado podio. No se ha encontrado ningún indicio de un ambón, pero su presencia es posible, en línea con otras iglesias bizantinas tempranas de la ciudad.[13] La mayoría de estos restos escultóricos muestran características típicas del siglo VI, como esculturas de mármol con incrustaciones de vidrio, pero el arquitrabe data de la restauración de la iglesia en el 797.[13]
Frescos
Una serie de pinturas al fresco, que datan de finales del siglo XIII, sobreviven en la pared suroeste de la iglesia, y pueden verse detrás de un vidrio protector. Catorce de ellas forman un ciclo que narra la vida y el martirio de santa Eufemia de Calcedonia, mientras que otra pintura representa el martirio de los Cuarenta mártires de Sebaste, un tema único entre las iglesias de la capital.[13]
Referencias
- Juan Escilitzes, Romanos II, 2.9
- Martindale, Jones & Morris (1992), pp. 101–102
- Bardill, 2004, pp. 57–58.
- Kostenec (2008)
- Bardill, 2004, p. 56.
- Bardill, 2004, pp. 107–109.
- Kazhdan, 1991, p. 747.
- Cameron y Herrin, 1984, pp. 22 y 63.
- Bogdanovic, Jelena (2017). The Framing of Sacred Space. Oxford UP. pp. 190-193.
- Cameron y Herrin, 1984, p. 22.
- Kazhdan , 1991, pp. 747-748.
- Kazhdan, 1991, pp. 747-748.
- Ball (2008)
Bibliografía
- Ball, Amanda (2008). «Church of St. Euphemia». Encyclopedia of the Hellenic World, Constantinople. Archivado desde el original el 6 de diciembre de 2015. Consultado el 6 de diciembre de 2015.
- Bardill, Jonathan (2004). Brickstamps of Constantinople, Volume 1 (en inglés). Oxford University Press. ISBN 978-0-19-925524-5.
- Cameron, Averil; Herrin, Judith (1984). Constantinople in the early eighth century: the Parastaseis syntomoi chronikai (introduction, translation, and commentary) (en inglés). Brill Archive. ISBN 978-90-04-07010-3.
- Kazhdan, Alexander, ed. (1991). Oxford Dictionary of Byzantium. Oxford University Press. ISBN 978-0-19-504652-6.
- Kostenec, Jan. «Palace of Antiochos». Encyclopedia of the Hellenic World, Constantinople. Archivado desde el original el 8 de diciembre de 2015. Consultado el 8 de diciembre de 2015.
- Martindale, John R.; Jones, A.H.M.; Morris, J. (1992). The Prosopography of the Later Roman Empire, Volume II: A.D. 395–527. Cambridge University Press. ISBN 978-0-521-20159-9.
Enlaces externos
- 3D reconstruction of the palace at the Byzantium 1200 project
- Hag. Euphemia en to Hippodromo, plans and cutaways of the building by Prof. Thomas Mathews, The Byzantine Churches of Istanbul, Institute of Fine Arts, New York University
